ГОСТ 8735-88
ГОСТ 8735-88 Песок для строительных работ. Методы испытаний
Категории ГОСТ 8735-88 по ОКС:- 91. Стройматериалы и строительство
- 91.100. Строительные материалы
- 91.100.15 Минеральные материалы и изделия *включая землю, песок, глину, шифер, камень и т. Д.
- Статус документа:
- действует, введён в действие 01.07.1989
- Название на английском языке:
- Sand for construction work. Testing methods
- Дата актуализации информации по стандарту:
- 25.12.2025, в 08:34 (менее 3 месяцев назад)
- Вид стандарта:
- Стандарты на методы контроля
- Дата начала действия ГОСТа:
- 1989-07-01
- Дата последнего издания документа:
- 2018-08-24
Коды документа ГОСТ 8735-88:
- Код КГС:
- Ж19
- Код ОКСТУ:
- 5711
- Число страниц:
- 29
- Назначение ГОСТ 8735-88:
- Настоящий стандарт распространяется на песок, применяемый в качестве заполнителя для бетонов монолитных, сборных бетонных и железобетонных конструкций, а также материала для соответствующих видов строительных работ, и устанавливает методы испытаний
- ГРНТИ индекс(ы):
- 670181
- Документ разработан орг-ей:
- Минпромстройматериалов СССР
- Ключевые слова документа:
- заполнитель для бетонов монолитных, заполнитель для железобетонных конструкций, заполнитель для сборных бетонных конструкций, материал для соответствующих видов строительных работ, строительство
Нормативные ссылки, связанные с ГОСТ 8735-88:
- Стандарт ссылается на ГОСТы:
- ГОСТ Р 51232-98, ГОСТ 6709-72, ГОСТ 8.326-89, ГОСТ 2874-82, ГОСТ 29329-92, ГОСТ 27068-86, ГОСТ 25706-83, ГОСТ 25336-82, ГОСТ 24104-2001, ГОСТ 23932-90, ГОСТ 23732-79, ГОСТ 22524-77, ГОСТ 10163-76, ГОСТ 9147-80, ГОСТ 8736-93, ГОСТ 8269.0-97, ГОСТ 6613-86, ГОСТ 4461-77, ГОСТ 4328-77, ГОСТ 4232-74, ГОСТ 4220-75, ГОСТ 4204-77, ГОСТ 4159-79, ГОСТ 4108-72, ГОСТ 3760-79, ГОСТ 3118-77, ГОСТ 2184-77, ГОСТ 1770-74, ГОСТ 1277-75, ГОСТ 450-77, ГОСТ 427-75, ГОСТ 83-79
- На стандарт ссылаются:
- ГОСТ Р 56828.42-2018, ГОСТ Р 54401-2011, ГОСТ Р 54359-2011, ГОСТ Р 54358-2011, ГОСТ Р 54272-2010, ГОСТ Р 54271-2010, ГОСТ Р 54270-2010, ГОСТ Р 52751-2007, ГОСТ 33389-2015, ГОСТ 32949-2014, ГОСТ 22131-2016, ГОСТ 26633-2015, ГОСТ 12536-2014, ГОСТ 32495-2013, ГОСТ 33083-2014, ГОСТ 23735-2014, ГОСТ 10181-2014, ГОСТ 8736-2014, ГОСТ 25820-2014, ГОСТ 9128-2013, ГОСТ 32209-2013, ГОСТ 32021-2012, ГОСТ 32017-2012, ГОСТ 26633-2012, ГОСТ 19330-2013, ГОСТ 9758-2012, ГОСТ 31426-2010, ГОСТ 31424-2010, ГОСТ 31387-2008, ГОСТ 31386-2008, ГОСТ 31377-2008, ГОСТ 31376-2008, ГОСТ 25607-2009, ГОСТ 10832-2009, ГОСТ 9128-2009, ГОСТ 7473-2010, ГОСТ 31015-2002, ГОСТ 28013-98, ГОСТ 26644-85, ГОСТ 26633-91, ГОСТ 25820-2000, ГОСТ 25607-94, ГОСТ 25592-91, ГОСТ 25226-96, ГОСТ 23735-79, ГОСТ 23558-94, ГОСТ 23037-99, ГОСТ 22856-89, ГОСТ 22263-76, ГОСТ 10181-2000, ГОСТ 9758-86, ГОСТ 9128-97, ГОСТ 8736-93, ГОСТ 8269.0-97, ГОСТ 7394-85, ГОСТ 4416-94, ГОСТ 3344-83, ГОСТ 31358-2007, ГОСТ 31357-2007, EN 60204-1:2006
- Ссылки на прочие:
- ТУ 6-09-1706-82;ТУ 6-09-5169-84;ПР 50.2.009-94
Скачать ГОСТ 8735-88 вы можете в следующих версиях:
Тип файла:
Дата добавления:
Загрузок:
Размер:
Ссылка на скачивание:
Добавлен:
20/11/2025 14:18
Скачиваний:
37
Размер файла:
2.32 Мб
Ссылка для скачивания:
Поправки и изменения к ГОСТ 8735-88:
-
Наименование, вид:Датарегистрации:начала действия:Ссылка:
-
Изменение №1 к ГОСТ 8735-88
Тип изменения: Текстовое изменение
Номер изменения: 1
Регистрационный номер: 109
Новое значение: -
1989-06-221990-01-01 -
Изменение №2 к ГОСТ 8735-88
Тип изменения: Текстовое изменение
Номер изменения: 2
Регистрационный номер: 115
2001-02-262001-04-01 -
Поправка к ГОСТ 8735-88
Тип изменения: Поправка
Номер изменения:
Регистрационный номер: -
2018-12-142018-12-14
-
страница 1
-
страница 2
-
страница 3
-
страница 4
-
страница 5
-
страница 6
-
страница 7
-
страница 8
-
страница 9
-
страница 10
-
страница 11
-
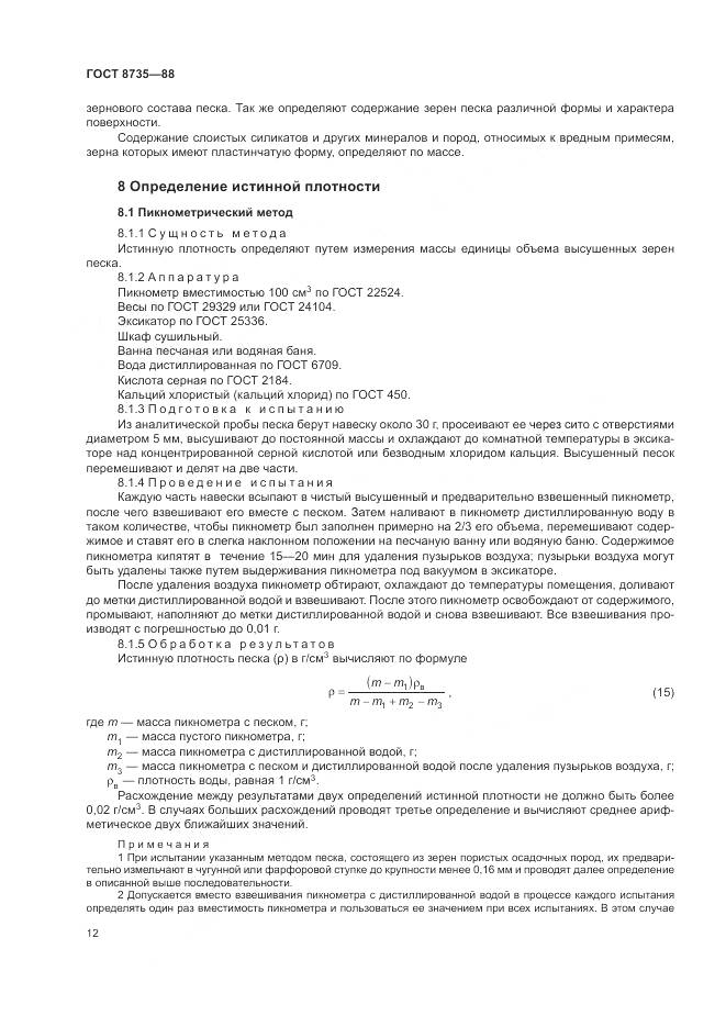
страница 12
-
страница 13
-
страница 14
-
страница 15
-
страница 16
-
страница 17
-
страница 18
-
страница 19
-
страница 20
-
страница 21
-
страница 22
-
страница 23
-
страница 24
-
страница 25
-
страница 26
-
страница 27
-
страница 28
-
страница 29