ГОСТ Р 72002-2025 Фильтры очистки воздуха общего назначения. Испытания установленных фильтров и фильтрующих систем в условиях применения для определения эффективности улавливания частиц заданного размера и перепада давления

Категории ГОСТ Р 72002-2025 по ОКС:
Статус документа:
принят, введён в действие 01.01.2026
Название на английском языке:
Air filters for general ventilation. Field testing of general ventilation filtration devices and systems for in situ removal efficiency by particle size and resistance to airflow
Дата актуализации информации по стандарту:
17.10.2025, в 09:15 (менее полугода назад)
Вид стандарта:
временно не известен
Дата начала действия ГОСТа:
2026-01-01
Число страниц:
46
Назначение ГОСТ Р 72002-2025:
не указано

Скачать ГОСТ Р 72002-2025 вы можете в следующих версиях:

Тип файла:
Дата добавления:
Загрузок:
Размер:
Тип файла:
PDF с изображениями
Добавлен:
21/11/2025 11:17
Скачиваний:
28
Размер файла:
13.81 Мб
  • ГОСТ Р 72002-2025, страница 1 страница 1
  • ГОСТ Р 72002-2025, страница 2 страница 2
  • ГОСТ Р 72002-2025, страница 3 страница 3
  • ГОСТ Р 72002-2025, страница 4 страница 4
  • ГОСТ Р 72002-2025, страница 5 страница 5
  • ГОСТ Р 72002-2025, страница 6 страница 6
  • ГОСТ Р 72002-2025, страница 7 страница 7
  • ГОСТ Р 72002-2025, страница 8 страница 8
  • ГОСТ Р 72002-2025, страница 9 страница 9
  • ГОСТ Р 72002-2025, страница 10 страница 10
  • ГОСТ Р 72002-2025, страница 11 страница 11
  • ГОСТ Р 72002-2025, страница 12 страница 12
  • ГОСТ Р 72002-2025, страница 13 страница 13
  • ГОСТ Р 72002-2025, страница 14 страница 14
  • ГОСТ Р 72002-2025, страница 15 страница 15
  • ГОСТ Р 72002-2025, страница 16 страница 16
  • ГОСТ Р 72002-2025, страница 17 страница 17
  • ГОСТ Р 72002-2025, страница 18 страница 18
  • ГОСТ Р 72002-2025, страница 19 страница 19
  • ГОСТ Р 72002-2025, страница 20 страница 20
  • ГОСТ Р 72002-2025, страница 21 страница 21
  • ГОСТ Р 72002-2025, страница 22 страница 22
  • ГОСТ Р 72002-2025, страница 23 страница 23
  • ГОСТ Р 72002-2025, страница 24 страница 24
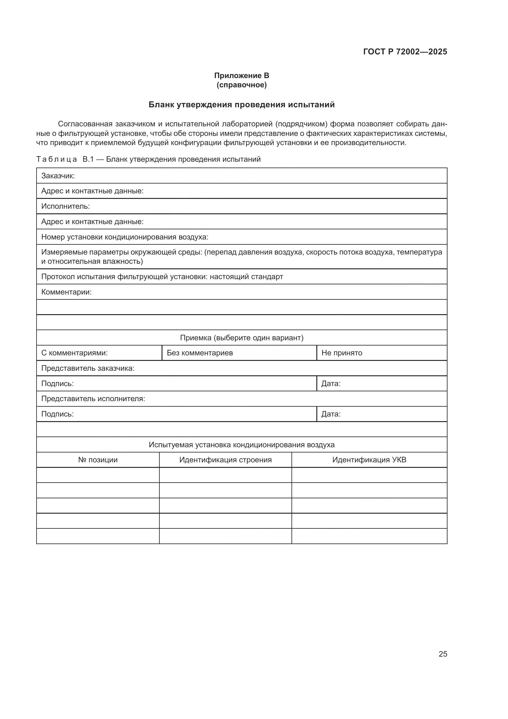
  • ГОСТ Р 72002-2025, страница 25 страница 25
  • ГОСТ Р 72002-2025, страница 26 страница 26
  • ГОСТ Р 72002-2025, страница 27 страница 27
  • ГОСТ Р 72002-2025, страница 28 страница 28
  • ГОСТ Р 72002-2025, страница 29 страница 29
  • ГОСТ Р 72002-2025, страница 30 страница 30
  • ГОСТ Р 72002-2025, страница 31 страница 31
  • ГОСТ Р 72002-2025, страница 32 страница 32
  • ГОСТ Р 72002-2025, страница 33 страница 33
  • ГОСТ Р 72002-2025, страница 34 страница 34
  • ГОСТ Р 72002-2025, страница 35 страница 35
  • ГОСТ Р 72002-2025, страница 36 страница 36
  • ГОСТ Р 72002-2025, страница 37 страница 37
  • ГОСТ Р 72002-2025, страница 38 страница 38
  • ГОСТ Р 72002-2025, страница 39 страница 39
  • ГОСТ Р 72002-2025, страница 40 страница 40
  • ГОСТ Р 72002-2025, страница 41 страница 41
  • ГОСТ Р 72002-2025, страница 42 страница 42
  • ГОСТ Р 72002-2025, страница 43 страница 43
  • ГОСТ Р 72002-2025, страница 44 страница 44
  • ГОСТ Р 72002-2025, страница 45 страница 45
  • ГОСТ Р 72002-2025, страница 46 страница 46