ГОСТ Р 71912-2024 Плиты парапетные железобетонные для производственных зданий. Технические условия

Категории ГОСТ Р 71912-2024 по ОКС:
Статус документа:
действует, введён в действие 01.03.2025
Название на английском языке:
Coping units of precast concrete for industrial buildings. Specifications
Дата актуализации информации по стандарту:
16.10.2025, в 14:44 (менее полугода назад)
Вид стандарта:
временно не известен
Дата начала действия ГОСТа:
2025-03-01
Число страниц:
12
Назначение ГОСТ Р 71912-2024:
не указано

Скачать ГОСТ Р 71912-2024 вы можете в следующих версиях:

Тип файла:
Дата добавления:
Загрузок:
Размер:
Тип файла:
PDF с изображениями
Добавлен:
21/11/2025 11:22
Скачиваний:
31
Размер файла:
3.17 Мб
  • ГОСТ Р 71912-2024, страница 1 страница 1
  • ГОСТ Р 71912-2024, страница 2 страница 2
  • ГОСТ Р 71912-2024, страница 3 страница 3
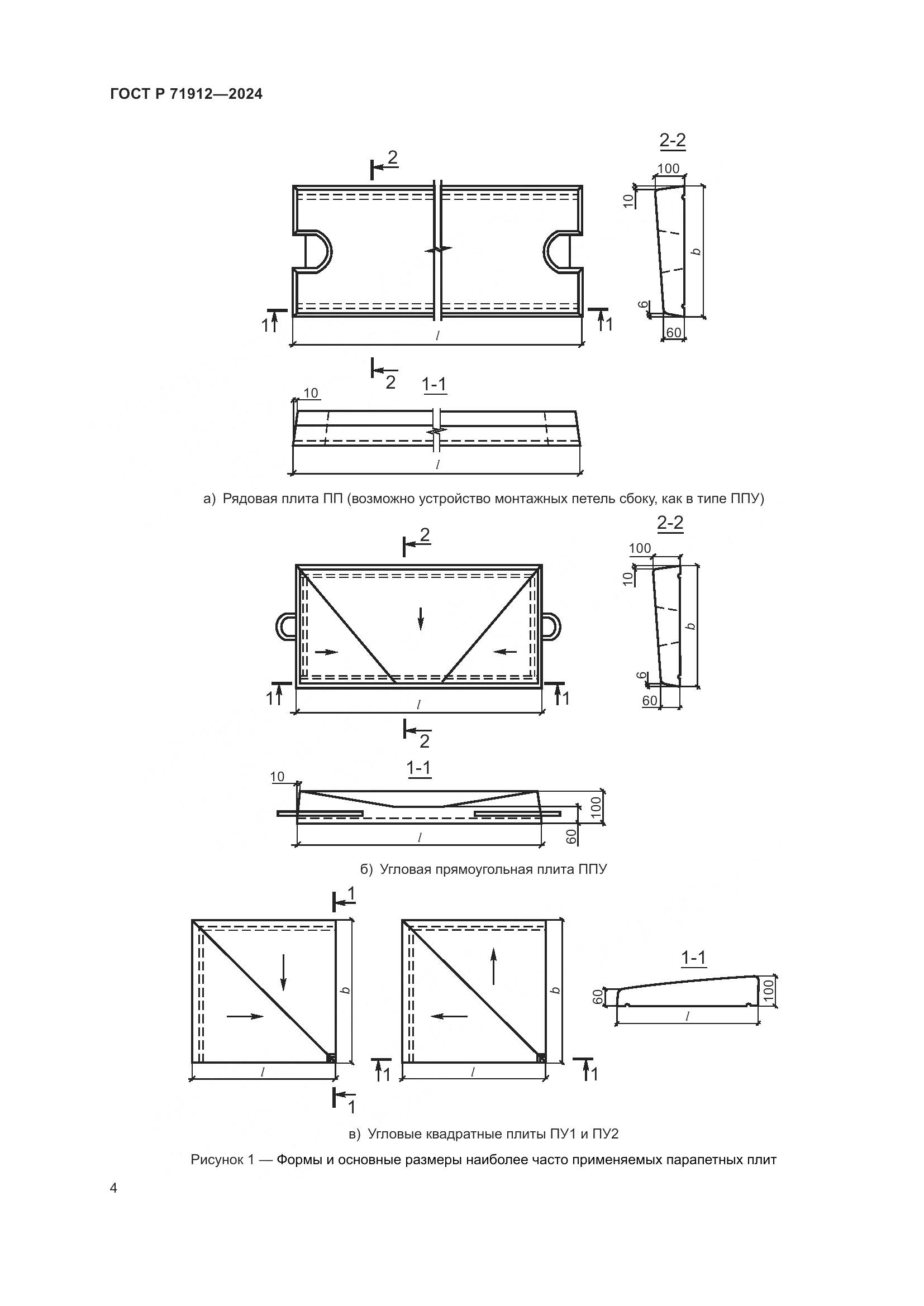
  • ГОСТ Р 71912-2024, страница 4 страница 4
  • ГОСТ Р 71912-2024, страница 5 страница 5
  • ГОСТ Р 71912-2024, страница 6 страница 6
  • ГОСТ Р 71912-2024, страница 7 страница 7
  • ГОСТ Р 71912-2024, страница 8 страница 8
  • ГОСТ Р 71912-2024, страница 9 страница 9
  • ГОСТ Р 71912-2024, страница 10 страница 10
  • ГОСТ Р 71912-2024, страница 11 страница 11
  • ГОСТ Р 71912-2024, страница 12 страница 12