ГОСТ 33200-2014 Оси колесных пар железнодорожного подвижного состава. Общие технические условия

Категории ГОСТ 33200-2014 по ОКС:
Статус документа:
действует, введён в действие 01.04.2016
Название на английском языке:
Axles for wheelsets of railway rolling stock. General specifications
Дата актуализации информации по стандарту:
22.10.2025, в 20:11 (менее 3 месяцев назад)
Вид стандарта:
Основополагающие стандарты
Дата начала действия ГОСТа:
2016-04-01
Дата последнего издания документа:
2015-10-27
Коды документа ГОСТ 33200-2014:
Код ОКП:
091100;318381;318100;345100
Число страниц:
47
Назначение ГОСТ 33200-2014:
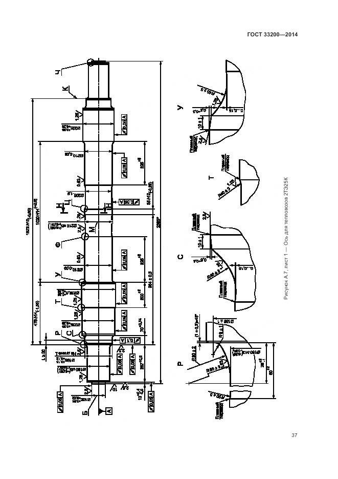
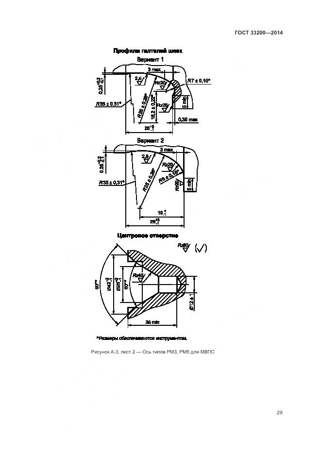
Настоящий стандарт распространяется на черновые оси и чистовые оси исполнения УХЛ по ГОСТ 15150 для колесных пар грузовых вагонов, пассажирских вагонов локомотивной тяги, локомотивов, моторвагонного подвижного состава (далее - МВПС), специального железнодорожного подвижного состава (далее - СПС) и подвижного состава метрополитена
Документ разработан орг-ей:
Федеральное агентство по техническому регулированию и метрологии (Росстандарт)
Документ принят орг-ей:
Межгосударственный Совет по стандартизации метрологии и сертификации, протокол №73-П
Ключевые слова документа:
вязкость разрушения, гарантии изготовителя, классификация осей, конструкция и размеры, методы контроля, оси черновые, оси чистовые, подвижной состав, правила приемки, предел выносливости, технические требования, транспортирование и хранение, упрочнение накатыванием роликами

Скачать ГОСТ 33200-2014 вы можете в следующих версиях:

Тип файла:
Дата добавления:
Загрузок:
Размер:
Тип файла:
PDF с изображениями
Добавлен:
20/11/2025 15:41
Скачиваний:
6
Размер файла:
3.47 Мб
  • ГОСТ 33200-2014, страница 1 страница 1
  • ГОСТ 33200-2014, страница 2 страница 2
  • ГОСТ 33200-2014, страница 3 страница 3
  • ГОСТ 33200-2014, страница 4 страница 4
  • ГОСТ 33200-2014, страница 5 страница 5
  • ГОСТ 33200-2014, страница 6 страница 6
  • ГОСТ 33200-2014, страница 7 страница 7
  • ГОСТ 33200-2014, страница 8 страница 8
  • ГОСТ 33200-2014, страница 9 страница 9
  • ГОСТ 33200-2014, страница 10 страница 10
  • ГОСТ 33200-2014, страница 11 страница 11
  • ГОСТ 33200-2014, страница 12 страница 12
  • ГОСТ 33200-2014, страница 13 страница 13
  • ГОСТ 33200-2014, страница 14 страница 14
  • ГОСТ 33200-2014, страница 15 страница 15
  • ГОСТ 33200-2014, страница 16 страница 16
  • ГОСТ 33200-2014, страница 17 страница 17
  • ГОСТ 33200-2014, страница 18 страница 18
  • ГОСТ 33200-2014, страница 19 страница 19
  • ГОСТ 33200-2014, страница 20 страница 20
  • ГОСТ 33200-2014, страница 21 страница 21
  • ГОСТ 33200-2014, страница 22 страница 22
  • ГОСТ 33200-2014, страница 23 страница 23
  • ГОСТ 33200-2014, страница 24 страница 24
  • ГОСТ 33200-2014, страница 25 страница 25
  • ГОСТ 33200-2014, страница 26 страница 26
  • ГОСТ 33200-2014, страница 27 страница 27
  • ГОСТ 33200-2014, страница 28 страница 28
  • ГОСТ 33200-2014, страница 29 страница 29
  • ГОСТ 33200-2014, страница 30 страница 30
  • ГОСТ 33200-2014, страница 31 страница 31
  • ГОСТ 33200-2014, страница 32 страница 32
  • ГОСТ 33200-2014, страница 33 страница 33
  • ГОСТ 33200-2014, страница 34 страница 34
  • ГОСТ 33200-2014, страница 35 страница 35
  • ГОСТ 33200-2014, страница 36 страница 36
  • ГОСТ 33200-2014, страница 37 страница 37
  • ГОСТ 33200-2014, страница 38 страница 38
  • ГОСТ 33200-2014, страница 39 страница 39
  • ГОСТ 33200-2014, страница 40 страница 40
  • ГОСТ 33200-2014, страница 41 страница 41
  • ГОСТ 33200-2014, страница 42 страница 42
  • ГОСТ 33200-2014, страница 43 страница 43
  • ГОСТ 33200-2014, страница 44 страница 44
  • ГОСТ 33200-2014, страница 45 страница 45
  • ГОСТ 33200-2014, страница 46 страница 46
  • ГОСТ 33200-2014, страница 47 страница 47