ГОСТ 33172-2014 Тали электрические цепные. Требования безопасности

Категории ГОСТ 33172-2014 по ОКС:
Статус документа:
действует, введён в действие 01.01.2016
Название на английском языке:
Electric chain hoists. Safety requirements
Дата актуализации информации по стандарту:
22.10.2025, в 19:57 (менее 3 месяцев назад)
Вид стандарта:
Стандарты на процессы
Дата начала действия ГОСТа:
2016-01-01
Дата последнего издания документа:
2015-09-24
Число страниц:
20
Назначение ГОСТ 33172-2014:
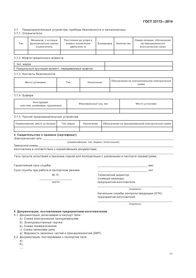
Настоящий стандарт устанавливает требования безопасности к конструкции и изготовлению талей электрических цепных с целью обеспечения заданных показателей производительности, надежности и безопасности во время их последующей эксплуатации. Невыполнение требований настоящего стандарта может привести к увеличению риска использования талей или к сокращению срока их службы. Настоящий стандарт применим ко всем новым талям, изготовленным после истечения одного года после его утверждения. Стандарт не устанавливает требования замены или модернизации существующего оборудования
Документ разработан орг-ей:
Федеральное агентство по техническому регулированию и метрологии (Росстандарт)
Документ принят орг-ей:
Межгосударственный Совет по стандартизации метрологии и сертификации, протокол №№ 46
Ключевые слова документа:
тали цепные, тали электрические, цепи

Скачать ГОСТ 33172-2014 вы можете в следующих версиях:

Тип файла:
Дата добавления:
Загрузок:
Размер:
Тип файла:
PDF с изображениями
Добавлен:
20/11/2025 15:42
Скачиваний:
3
Размер файла:
1.12 Мб
  • ГОСТ 33172-2014, страница 1 страница 1
  • ГОСТ 33172-2014, страница 2 страница 2
  • ГОСТ 33172-2014, страница 3 страница 3
  • ГОСТ 33172-2014, страница 4 страница 4
  • ГОСТ 33172-2014, страница 5 страница 5
  • ГОСТ 33172-2014, страница 6 страница 6
  • ГОСТ 33172-2014, страница 7 страница 7
  • ГОСТ 33172-2014, страница 8 страница 8
  • ГОСТ 33172-2014, страница 9 страница 9
  • ГОСТ 33172-2014, страница 10 страница 10
  • ГОСТ 33172-2014, страница 11 страница 11
  • ГОСТ 33172-2014, страница 12 страница 12
  • ГОСТ 33172-2014, страница 13 страница 13
  • ГОСТ 33172-2014, страница 14 страница 14
  • ГОСТ 33172-2014, страница 15 страница 15
  • ГОСТ 33172-2014, страница 16 страница 16
  • ГОСТ 33172-2014, страница 17 страница 17
  • ГОСТ 33172-2014, страница 18 страница 18
  • ГОСТ 33172-2014, страница 19 страница 19
  • ГОСТ 33172-2014, страница 20 страница 20