ГОСТ 33065-2014 Фанера для авто-, вагоно-, контейнеростроения. Технические условия

Категории ГОСТ 33065-2014 по ОКС:
Статус документа:
действует, введён в действие 01.01.2016
Название на английском языке:
Plywood for truck, car, container building. Specifications
Дата актуализации информации по стандарту:
22.10.2025, в 19:46 (менее 3 месяцев назад)
Вид стандарта:
Стандарты на продукцию (услуги)
Дата начала действия ГОСТа:
2016-01-01
Дата последнего издания документа:
2015-08-19
Число страниц:
16
Назначение ГОСТ 33065-2014:
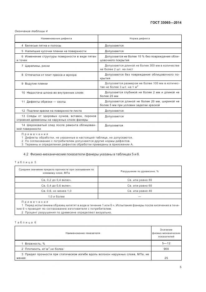
Настоящий стандарт распространяется на фанеру повышенной водостойкости для авто-, вагоно-, контейнеростроения, облицованную с одной или двух сторон пленками на основе термореактивных полимеров, необлицованную под защитное покрытие, антисептированную. Фанера предназначена для изготовления полов контейнеров, деталей кузовов автомобилей, стен и полов грузовых вагонов, для использования в пассажирских вагонах. Положения настоящего стандарта распространяются на фанеру, выпускаемую и применяемую предприятиями (организациями) любых форм собственности, а также индивидуальными изготовителями
Документ разработан орг-ей:
Федеральное агентство по техническому регулированию и метрологии (Росстандарт)
Документ принят орг-ей:
Межгосударственный Совет по стандартизации метрологии и сертификации, протокол №72-П
Ключевые слова документа:
авто-, вагоно-, выделение формальдегида, контейнеростроение, лущеный шпон, пленка, термореактивные полимеры, технические требования, фанера, физико-механические показатели

Скачать ГОСТ 33065-2014 вы можете в следующих версиях:

Тип файла:
Дата добавления:
Загрузок:
Размер:
Тип файла:
PDF с изображениями
Добавлен:
20/11/2025 16:05
Скачиваний:
6
Размер файла:
1.06 Мб
  • ГОСТ 33065-2014, страница 1 страница 1
  • ГОСТ 33065-2014, страница 2 страница 2
  • ГОСТ 33065-2014, страница 3 страница 3
  • ГОСТ 33065-2014, страница 4 страница 4
  • ГОСТ 33065-2014, страница 5 страница 5
  • ГОСТ 33065-2014, страница 6 страница 6
  • ГОСТ 33065-2014, страница 7 страница 7
  • ГОСТ 33065-2014, страница 8 страница 8
  • ГОСТ 33065-2014, страница 9 страница 9
  • ГОСТ 33065-2014, страница 10 страница 10
  • ГОСТ 33065-2014, страница 11 страница 11
  • ГОСТ 33065-2014, страница 12 страница 12
  • ГОСТ 33065-2014, страница 13 страница 13
  • ГОСТ 33065-2014, страница 14 страница 14
  • ГОСТ 33065-2014, страница 15 страница 15
  • ГОСТ 33065-2014, страница 16 страница 16