ГОСТ ISO 3164-2016 Машины землеройные. Лабораторные испытания по оценке устройств защиты. Требования к пространству, ограничивающему деформацию

Категории ГОСТ ISO 3164-2016 по ОКС:
Статус документа:
действует, введён в действие 01.05.2017
Название на английском языке:
Earth-moving machinery. Laboratory evaluations of protective structures. Specifications for deflection-limiting volume
Дата актуализации информации по стандарту:
27.10.2025, в 13:06 (менее 3 месяцев назад)
Вид стандарта:
Стандарты на процессы
Дата начала действия ГОСТа:
2017-05-01
Дата последнего издания документа:
2016-10-14
Число страниц:
12
Назначение ГОСТ ISO 3164-2016:
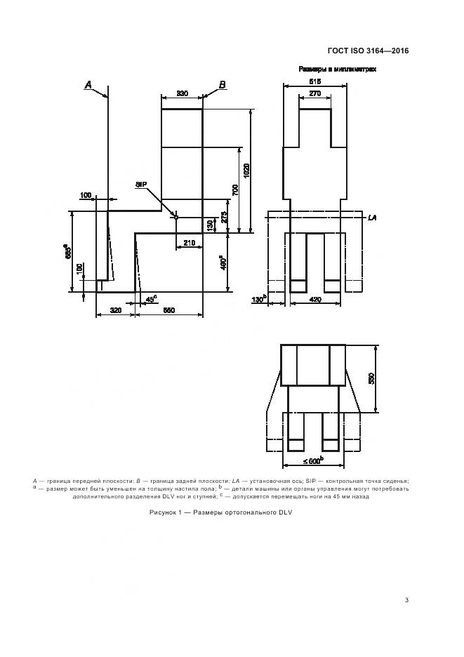
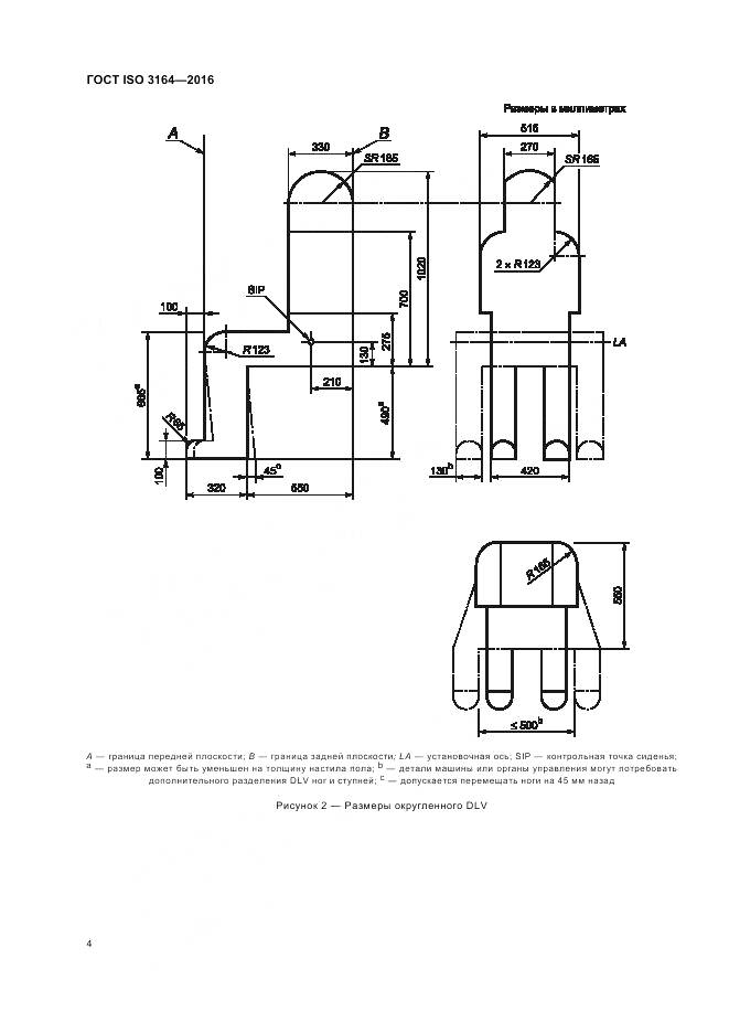
Настоящий стандарт устанавливает требования к объему ограничения деформации (DLV) при проведении лабораторных испытаний по оценке устройств защиты операторов землеройных машин, определенных в ISO 6165
Документ разработан орг-ей:
Федеральное агентство по техническому регулированию и метрологии (Росстандарт)
Документ принят орг-ей:
Межгосударственный Совет по стандартизации метрологии и сертификации, протокол №85-П
Ключевые слова документа:
измерения, испытания, контрольная точка сиденья SIP, машины землеройные, объем ограничения деформации DLV, размеры

Скачать ГОСТ ISO 3164-2016 вы можете в следующих версиях:

Тип файла:
Дата добавления:
Загрузок:
Размер:
Тип файла:
PDF с изображениями
Добавлен:
20/11/2025 15:13
Скачиваний:
2
Размер файла:
0.62 Мб
  • ГОСТ ISO 3164-2016, страница 1 страница 1
  • ГОСТ ISO 3164-2016, страница 2 страница 2
  • ГОСТ ISO 3164-2016, страница 3 страница 3
  • ГОСТ ISO 3164-2016, страница 4 страница 4
  • ГОСТ ISO 3164-2016, страница 5 страница 5
  • ГОСТ ISO 3164-2016, страница 6 страница 6
  • ГОСТ ISO 3164-2016, страница 7 страница 7
  • ГОСТ ISO 3164-2016, страница 8 страница 8
  • ГОСТ ISO 3164-2016, страница 9 страница 9
  • ГОСТ ISO 3164-2016, страница 10 страница 10
  • ГОСТ ISO 3164-2016, страница 11 страница 11
  • ГОСТ ISO 3164-2016, страница 12 страница 12