ГОСТ 23210-78 Блоки универсальных штампов для обрезки облоя у штампованных поковок с удлиненной осью на кривошипных прессах. Конструкция и размеры

Категории ГОСТ 23210-78 по ОКС:
Статус документа:
действует, введён в действие 01.07.1979
Название на английском языке:
Versatile press tools for clipping of die forgings with elondated axis on crank presses. Design and dimensions
Дата актуализации информации по стандарту:
13.09.2019, в 18:15 (более года назад)
Вид стандарта:
Стандарты на продукцию (услуги)
Дата начала действия ГОСТа:
1979-07-01
Дата последнего издания документа:
1978-10-03
Коды документа ГОСТ 23210-78:
Код ОКП:
396321
Код КГС:
Г21
Код ОКСТУ:
3963;3968
Число страниц:
16
Назначение ГОСТ 23210-78:
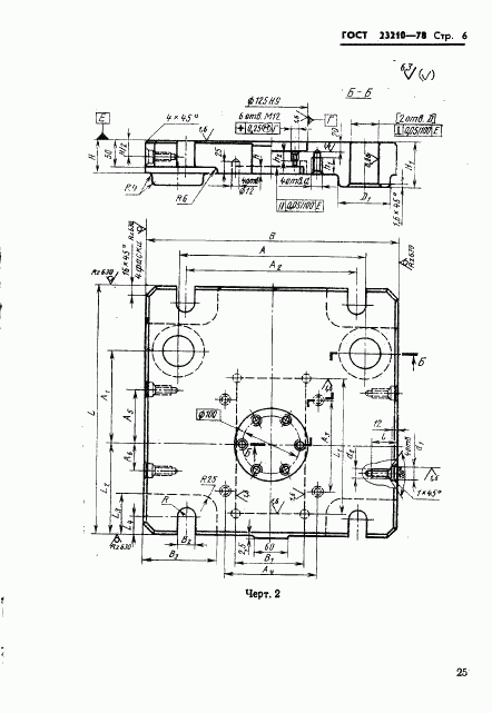
Настоящий стандарт распространяется на блоки универсальных штампов для обрезки облоя у штампованных поковок с удлиненной осью на однокривошипных закрытых прессах простого действия
ГРНТИ индекс(ы):
551619
Документ разработан орг-ей:
Министерство машиностроения для легкой и пищевой промышленности и бытовых приборов
Этот ГОСТ входит в сборник:
Блоки универсальных штампов для обрезки. Конструкция и размеры. Технические требования
Ключевые слова документа:
блоки, конструкция, обрезка облоя, поковки с удлиненной осью, поковки штампованные, прессы кривошипные, размеры, штампы универсальные

Скачать ГОСТ 23210-78 вы можете в следующих версиях:

Тип файла:
Дата добавления:
Загрузок:
Размер:
Тип файла:
PDF с изображениями
Добавлен:
12/12/2011 02:00
Скачиваний:
157
Размер файла:
0.47 Мб
Тип файла:
PDF с изображениями
Добавлен:
12/12/2011 01:57
Скачиваний:
172
Размер файла:
0.36 Мб

Поправки и изменения к ГОСТ 23210-78:

  • Наименование, вид:
    Дата
    регистрации:
    начала действия:
  • Изменение №1 к ГОСТ 23210-78

    Тип изменения: Текстовое изменение
    Номер изменения: 1
    Регистрационный номер: 1184

    1984-03-31
    1984-01-01
  • ГОСТ 23210-78, страница 1 страница 1
  • ГОСТ 23210-78, страница 2 страница 2
  • ГОСТ 23210-78, страница 3 страница 3
  • ГОСТ 23210-78, страница 4 страница 4
  • ГОСТ 23210-78, страница 5 страница 5
  • ГОСТ 23210-78, страница 6 страница 6
  • ГОСТ 23210-78, страница 7 страница 7
  • ГОСТ 23210-78, страница 8 страница 8
  • ГОСТ 23210-78, страница 9 страница 9
  • ГОСТ 23210-78, страница 10 страница 10
  • ГОСТ 23210-78, страница 11 страница 11
  • ГОСТ 23210-78, страница 12 страница 12
  • ГОСТ 23210-78, страница 13 страница 13
  • ГОСТ 23210-78, страница 14 страница 14
  • ГОСТ 23210-78, страница 15 страница 15
  • ГОСТ 23210-78, страница 16 страница 16