ГОСТ 18572-2014 Подшипники качения. Подшипники буксовые роликовые цилиндрические железнодорожного подвижного состава. Технические условия

Категории ГОСТ 18572-2014 по ОКС:
Статус документа:
действует, введён в действие 01.07.2015
Название на английском языке:
Rolling bearings. Axle box cylindrical roller bearings for rolling stock. Specification
Дата актуализации информации по стандарту:
22.10.2025, в 12:17 (менее 3 месяцев назад)
Вид стандарта:
Стандарты на продукцию (услуги)
Дата начала действия ГОСТа:
2015-07-01
Дата последнего издания документа:
2015-01-12
Коды документа ГОСТ 18572-2014:
Код ОКП:
462800
Код КГС:
Г16
Число страниц:
37
Назначение ГОСТ 18572-2014:
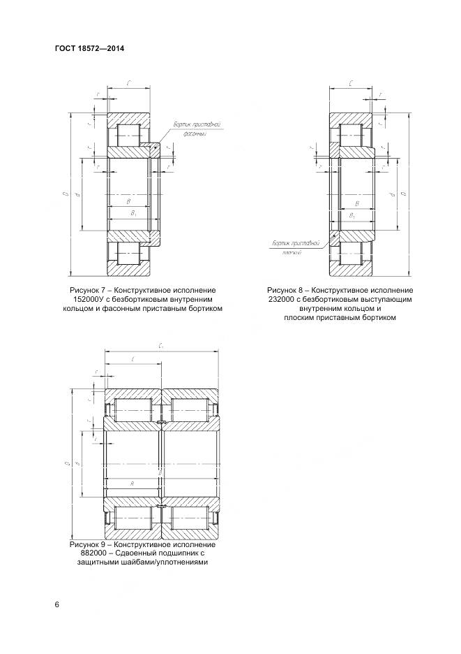
Настоящий стандарт распространяется на роликовые радиальные цилиндрические подшипники, предназначенные для применения в буксах железнодорожного подвижного состава
Документ принят орг-ей:
Межгосударственный Совет по стандартизации метрологии и сертификации, протокол №67-П
Ключевые слова документа:
буксовые роликовые цилиндрические подшипники, классификация, маркировка, методы контроля, надежность, назначение, подшипники роликовые цилиндрические двухрядные, правила приемки, транспортирование, требования к материалам, упаковка, хранение, цилиндрические подшипниковые узлы
Ссылки на прочие:
МК (ИСО 3166) 004-97

Скачать ГОСТ 18572-2014 вы можете в следующих версиях:

Тип файла:
Дата добавления:
Загрузок:
Размер:
Тип файла:
PDF с изображениями
Добавлен:
20/11/2025 16:13
Скачиваний:
9
Размер файла:
3.45 Мб
  • ГОСТ 18572-2014, страница 1 страница 1
  • ГОСТ 18572-2014, страница 2 страница 2
  • ГОСТ 18572-2014, страница 3 страница 3
  • ГОСТ 18572-2014, страница 4 страница 4
  • ГОСТ 18572-2014, страница 5 страница 5
  • ГОСТ 18572-2014, страница 6 страница 6
  • ГОСТ 18572-2014, страница 7 страница 7
  • ГОСТ 18572-2014, страница 8 страница 8
  • ГОСТ 18572-2014, страница 9 страница 9
  • ГОСТ 18572-2014, страница 10 страница 10
  • ГОСТ 18572-2014, страница 11 страница 11
  • ГОСТ 18572-2014, страница 12 страница 12
  • ГОСТ 18572-2014, страница 13 страница 13
  • ГОСТ 18572-2014, страница 14 страница 14
  • ГОСТ 18572-2014, страница 15 страница 15
  • ГОСТ 18572-2014, страница 16 страница 16
  • ГОСТ 18572-2014, страница 17 страница 17
  • ГОСТ 18572-2014, страница 18 страница 18
  • ГОСТ 18572-2014, страница 19 страница 19
  • ГОСТ 18572-2014, страница 20 страница 20
  • ГОСТ 18572-2014, страница 21 страница 21
  • ГОСТ 18572-2014, страница 22 страница 22
  • ГОСТ 18572-2014, страница 23 страница 23
  • ГОСТ 18572-2014, страница 24 страница 24
  • ГОСТ 18572-2014, страница 25 страница 25
  • ГОСТ 18572-2014, страница 26 страница 26
  • ГОСТ 18572-2014, страница 27 страница 27
  • ГОСТ 18572-2014, страница 28 страница 28
  • ГОСТ 18572-2014, страница 29 страница 29
  • ГОСТ 18572-2014, страница 30 страница 30
  • ГОСТ 18572-2014, страница 31 страница 31
  • ГОСТ 18572-2014, страница 32 страница 32
  • ГОСТ 18572-2014, страница 33 страница 33
  • ГОСТ 18572-2014, страница 34 страница 34
  • ГОСТ 18572-2014, страница 35 страница 35
  • ГОСТ 18572-2014, страница 36 страница 36
  • ГОСТ 18572-2014, страница 37 страница 37