ГОСТ 17524.4-93 Мебель для предприятий общественного питания. Функциональные размеры сервантов официантских

Категории ГОСТ 17524.4-93 по ОКС:
Статус документа:
действует, введён в действие 01.01.1995
Название на английском языке:
Furniture for catering establishments. Functional dimensions of cupboards for waiters
Дата актуализации информации по стандарту:
12.09.2019, в 18:14 (более года назад)
Вид стандарта:
Стандарты на продукцию (услуги)
Дата начала действия ГОСТа:
1995-01-01
Дата последнего издания документа:
1994-08-01
Коды документа ГОСТ 17524.4-93:
Код ОКП:
560000
Код КГС:
К25
Код ОКСТУ:
5602
Число страниц:
6
Назначение ГОСТ 17524.4-93:
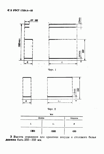
Настоящий стандарт распространяется на мебель для предприятий общественного питания и устанавливает функциональные размеры большого и малого официантских сервантов и отделений в них для хранения тарелок, пепельниц, салфеток, столового белья и столовых приборов. Стандарт не распространяется на официантские серванты, изготовляемые по специальным заказам
ГРНТИ индекс(ы):
663711
Ключевые слова документа:
предприятия, размеры

Скачать ГОСТ 17524.4-93 вы можете в следующих версиях:

Тип файла:
Дата добавления:
Загрузок:
Размер:
Тип файла:
PDF с изображениями
Добавлен:
12/12/2011 01:59
Скачиваний:
286
Размер файла:
0.27 Мб
  • ГОСТ 17524.4-93, страница 1 страница 1
  • ГОСТ 17524.4-93, страница 2 страница 2
  • ГОСТ 17524.4-93, страница 3 страница 3
  • ГОСТ 17524.4-93, страница 4 страница 4
  • ГОСТ 17524.4-93, страница 5 страница 5
  • ГОСТ 17524.4-93, страница 6 страница 6