ГОСТ 11214-2003 Блоки оконные деревянные с листовым остеклением. Технические условия

Категории ГОСТ 11214-2003 по ОКС:
Статус документа:
действует, введён в действие 01.03.2004
Название на английском языке:
Windows of wood with glass. Specifications
Дата актуализации информации по стандарту:
29.01.2026, в 11:29 (несколько дней назад)
Вид стандарта:
Стандарты на продукцию (услуги)
Дата начала действия ГОСТа:
2004-03-01
Дата последнего издания документа:
2004-04-23
Коды документа ГОСТ 11214-2003:
Код ОКП:
536131;536132
Код КГС:
Ж32
Число страниц:
50
Назначение ГОСТ 11214-2003:
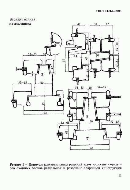
Настоящий стандарт распространяется на деревянные оконные и балконные дверные блоки с листовым остеклением для зданий и сооружений различного назначения. Область применения конкретных типов изделий устанавливают в зависимости от условий эксплуатации в соответствии с действующими строительными нормами с учетом требований ГОСТ 23166 и настоящего стандарта. Стандарт не распространяется на изделия специального назначения в части дополнительных требований к пожаробезопасности, защиты от взлома и др.
Документ разработан орг-ей:
Госстрой России
Документ принят орг-ей:
Межгосударственная научно-техническая комиссия по стандартизации техническому нормированию и сертификации в строительстве (МНТКС)
Ключевые слова документа:
дверные балконные блоки, коробка, наплав, оконные блоки, притвор, раздельная конструкция, раздельно-спаренная конструкция, спаренная конструкция, створка

Скачать ГОСТ 11214-2003 вы можете в следующих версиях:

Тип файла:
Дата добавления:
Загрузок:
Размер:
Тип файла:
PDF с изображениями
Добавлен:
12/12/2011 01:59
Скачиваний:
799
Размер файла:
1.29 Мб
  • ГОСТ 11214-2003, страница 1 страница 1
  • ГОСТ 11214-2003, страница 2 страница 2
  • ГОСТ 11214-2003, страница 3 страница 3
  • ГОСТ 11214-2003, страница 4 страница 4
  • ГОСТ 11214-2003, страница 5 страница 5
  • ГОСТ 11214-2003, страница 6 страница 6
  • ГОСТ 11214-2003, страница 7 страница 7
  • ГОСТ 11214-2003, страница 8 страница 8
  • ГОСТ 11214-2003, страница 9 страница 9
  • ГОСТ 11214-2003, страница 10 страница 10
  • ГОСТ 11214-2003, страница 11 страница 11
  • ГОСТ 11214-2003, страница 12 страница 12
  • ГОСТ 11214-2003, страница 13 страница 13
  • ГОСТ 11214-2003, страница 14 страница 14
  • ГОСТ 11214-2003, страница 15 страница 15
  • ГОСТ 11214-2003, страница 16 страница 16
  • ГОСТ 11214-2003, страница 17 страница 17
  • ГОСТ 11214-2003, страница 18 страница 18
  • ГОСТ 11214-2003, страница 19 страница 19
  • ГОСТ 11214-2003, страница 20 страница 20
  • ГОСТ 11214-2003, страница 21 страница 21
  • ГОСТ 11214-2003, страница 22 страница 22
  • ГОСТ 11214-2003, страница 23 страница 23
  • ГОСТ 11214-2003, страница 24 страница 24
  • ГОСТ 11214-2003, страница 25 страница 25
  • ГОСТ 11214-2003, страница 26 страница 26
  • ГОСТ 11214-2003, страница 27 страница 27
  • ГОСТ 11214-2003, страница 28 страница 28
  • ГОСТ 11214-2003, страница 29 страница 29
  • ГОСТ 11214-2003, страница 30 страница 30
  • ГОСТ 11214-2003, страница 31 страница 31
  • ГОСТ 11214-2003, страница 32 страница 32
  • ГОСТ 11214-2003, страница 33 страница 33
  • ГОСТ 11214-2003, страница 34 страница 34
  • ГОСТ 11214-2003, страница 35 страница 35
  • ГОСТ 11214-2003, страница 36 страница 36
  • ГОСТ 11214-2003, страница 37 страница 37
  • ГОСТ 11214-2003, страница 38 страница 38
  • ГОСТ 11214-2003, страница 39 страница 39
  • ГОСТ 11214-2003, страница 40 страница 40
  • ГОСТ 11214-2003, страница 41 страница 41
  • ГОСТ 11214-2003, страница 42 страница 42
  • ГОСТ 11214-2003, страница 43 страница 43
  • ГОСТ 11214-2003, страница 44 страница 44
  • ГОСТ 11214-2003, страница 45 страница 45
  • ГОСТ 11214-2003, страница 46 страница 46
  • ГОСТ 11214-2003, страница 47 страница 47
  • ГОСТ 11214-2003, страница 48 страница 48
  • ГОСТ 11214-2003, страница 49 страница 49
  • ГОСТ 11214-2003, страница 50 страница 50